乾振投資辦公室裝修
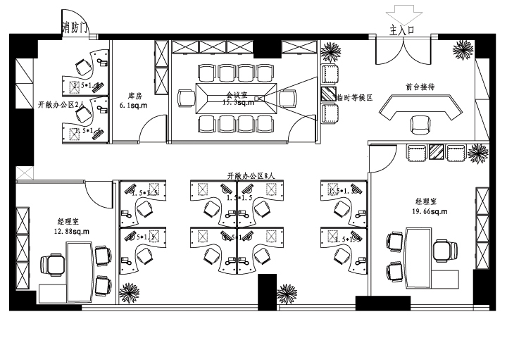
項目概況 PROJECT OVERVIEW
- 裝修面積 :260平米
- 工程地址 :北京市順義區南法信鎮金關北二街3號院
- 設計風格 :簡約
在線咨詢 咨詢熱線:
010-52479150
掃碼咨詢
北京乾振股權投資管理有限公司主要經營投資管理;項目投資;投資咨詢;資產管理;信息咨詢等。
項目規劃設計 THE PROJECT DESIGN

設計師觀點
體現時代特征為主,沒有過分的裝飾,一切從功能出發,講究造型比例適度、空間結構圖明確美觀,強調外觀的明快、簡潔。體現了現代生活快節奏、簡約和實用,但又富有朝氣的生活氣息
客戶都在看 CUSTOMERS ARE WATCHING


