中海廣場辦公室裝修
項目概況 PROJECT OVERVIEW
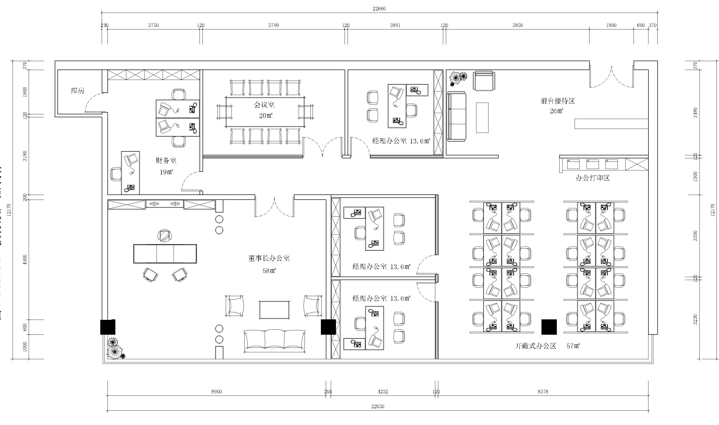
- 裝修面積 :500平米
- 工程地址 :北京市朝陽區光華東里8號中海廣場
- 設計風格 :混搭
在線咨詢 咨詢熱線:
010-52479150
掃碼咨詢隆福澤集團有限公司
項目規劃設計 THE PROJECT DESIGN

設計師觀點
提到混搭風格,不少人將其誤解為裝修風格的一種。其實,混搭風格雖然與風格有關,但它更是一種彰顯設計者個性化裝修的手段。在混搭風格的設計上,其設計者可以不接受任何拘束的跟隨自己的意識而進行設計,對于其他風格的特點和元素,設計者可以根據自己的意愿進行采納和搭配,最終設計出自己心中所想的裝修效果。因此,我們也常說混搭風格具有一個自主性的特點。在某種程度上來說,它是設計師的主觀意識的一種體現。
客戶都在看 CUSTOMERS ARE WATCHING


